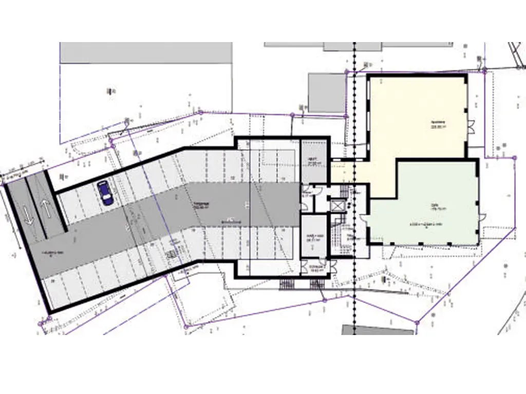
Die Nietiedt Planen & Bauen GmbH wurde mit der Entwicklung eines Vorentwurfs für ein Versorgungszentrum in Fallingbostel beauftragt. Der Entwurf sieht einen modernen, architektonisch anspruchsvollen Gebäudekomplex vor, der sich harmonisch in das Stadtbild einfügt und als Eingangspunkt zur Innenstadt eine prägende Rolle übernimmt.
Nutzungskonzept: Funktionalität trifft auf städtebauliche Integration
Das Versorgungszentrum kombiniert verschiedene Nutzungen unter einem Dach und schafft somit ein attraktives, zukunftsorientiertes Angebot für die Region:
- Arztpraxen, die eine moderne medizinische Versorgung sicherstellen
- Eine Apotheke, die direkt an die Gesundheitsversorgung angebunden ist
- Ein Café, das als sozialer Treffpunkt dient
- Wohnungen, die eine urbane Durchmischung ermöglichen und das Zentrum auch außerhalb der Geschäftszeiten beleben
Diese vielfältige Nutzung trägt zu einer hohen Aufenthaltsqualität bei und macht das Zentrum zu einem belebten Ort für Anwohner und Besucher.
Moderne Architektur mit Blick auf das Stadtbild
Das architektonische Konzept des Vorentwurfs setzt auf eine moderne, stilvolle Gestaltung, die sich gleichzeitig in die bestehende Umgebung einfügt. Durch eine ausgewogene Materialwahl, klare Linien und großzügige Fensterflächen entsteht ein einladendes Gebäude mit hoher Aufenthaltsqualität.
Standort im Sanierungsgebiet: Ein Beitrag zur Stadtentwicklung
Der Neubau ist in einem Sanierungsgebiet geplant und stellt damit eine wesentliche Maßnahme zur städtebaulichen Aufwertung von Fallingbostel dar. Durch die zentrale Lage wird das Versorgungszentrum nicht nur ein wichtiger Infrastrukturbaustein, sondern auch ein prägendes Element für die Stadtentwicklung.

